Proprietate imobiliară - fost sector economic şi comercial fermă
Identificator publicitate:
























| Loc deținere | Localitatea Dorobanţu judeţ Constanţa |
|---|---|
| Loc predare | Localitatea Dorobanţu judeţ Constanţa |












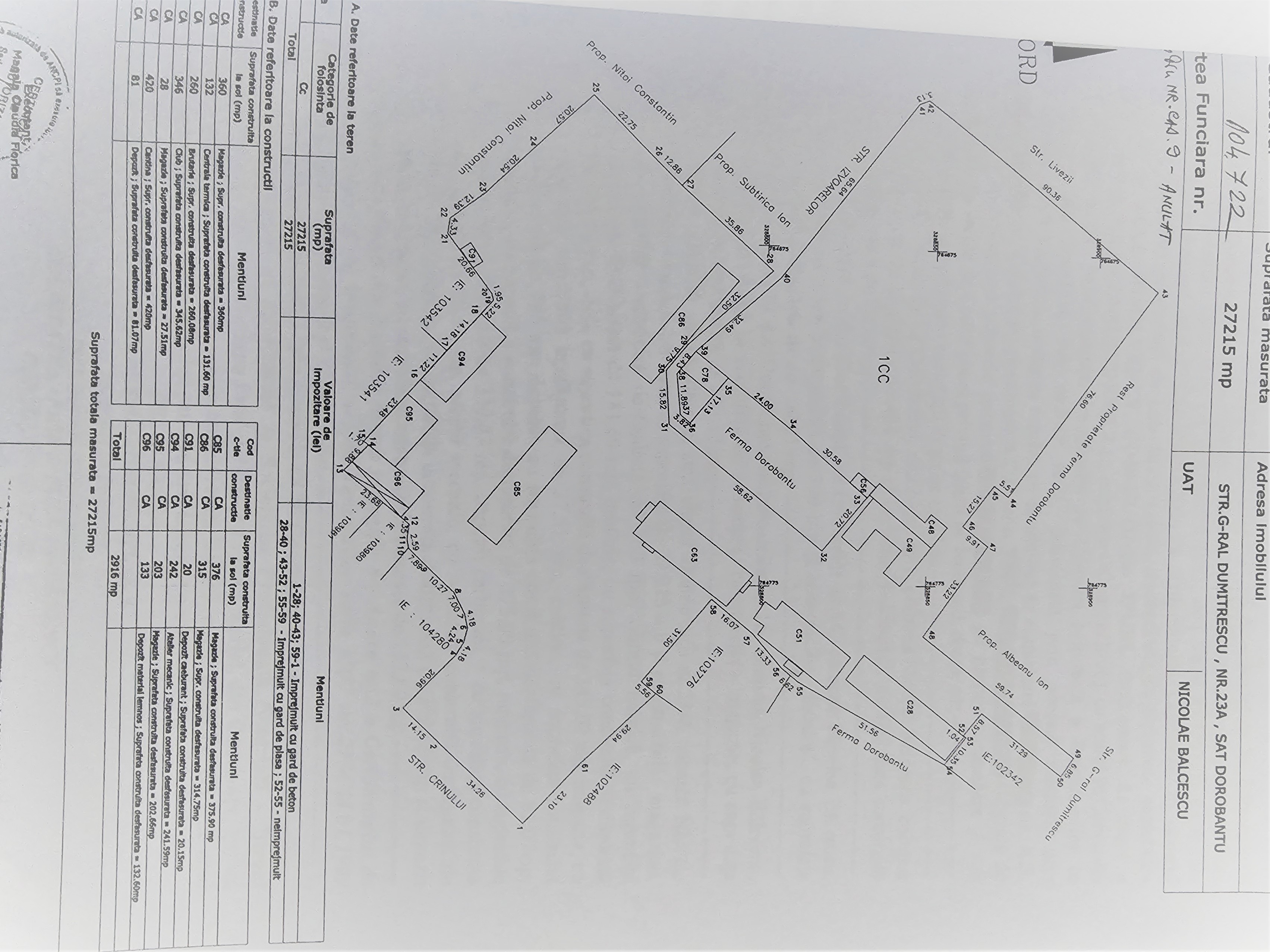
Teren şi 12 construcţii C1- C13 situate în localitatea Dorobanţu judeţ Constanţa. Zonă rurală mixtă cu specific rezidenţial, comercial şi prestări servicii a comunei Nicolae Bălcescu. Acces auto la proprietate prin stradă asfaltată. Teren parţial ocupat de clădiri cu regim de înălţime parter, îngrădit cu gard din plăci prefabricate de beton şi plasă metalică. Acces la utilităţi : apă, energie electrică. În incintă se regăsesc stâlpi de beton pentru reţea aeriană proprie de alimentare cu energie electrică . Carte funciară nr. 104722 UAT Nicolae Bălcescu , C1 - magazie 360 mp, C2 - centrală termică 131,6 mp, C3 - brutărie 260,08 mp, C4 - club 345,62 mp, C6 - cantină 420 mp, C7 depozit 81,07 mp, C8 - magazie 375,9 MP, C9 magazie 314,75, C10 - depozit 20,15 MP, C11 - atelier mecanic 241,59 MP, C12 - magazie 202,66 MP, C13-depozit material lemnos 132,6 MP.
| Suprafata teren | 27.215 |
| Denumire | Denumire creditor |
|---|---|
| IPOTECĂ act notarial 4498 din 25.11.2016 | Legal credit ifn sa |
| SECHESTRU ASIGURĂTOR ordonanța din 10.05.2017 | Parchetul de pe lângă Tribunalul Constanța |
| SECHESTRU EXECUTOR nr. 266118 din 18.07.2019 | Statul Român |
| IPOTECĂ LEGALĂ nr. 12328 din 04.12.2023 | Comuna Nicolae Bălcescu |
| SECHESTRU EXECUTOR nr. A_EGL-980 din 19.02.2024 | Direcția Genarală Executări Silite Cazuri Speciale |